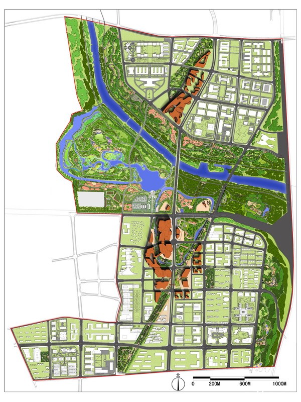
北京未来科技城是为深入贯彻落实中央关于建设创新型国家和“千人计划”的重大战略部署,在京集中建设的国家级研发机构集群。其中,滨水森林公园位于未来科技城南北两区的中间,用地规模314公顷,温榆河贯穿其东西,形成南北滨河区。原温榆河故道——老河湾位于温榆河南区,河道长约2.5公里。滨水森林公园将作为城市主要生态廊道及服务于未来城及周边市民的区域性综合公园。
规划旨在融合战略背景、场地特征及“山水城市”理念,提出“海纳百川、山水融城,在自然中激发科技创新”的设计理念,同时深入贯彻未来科技城提出的“人本、共生、创新、开放、低碳”的核心原则,集中探索了大型高科技园区如何在规划中通过自然环境的营造、新空间模式的创造达到以自然为本、以人和创新为本的最终目的。
公园总体格局从整个城区范围出发来考虑,借鉴中国传统理想风水模式,处理公园中山水关系。主山位于西南侧,主水面靠近城市核心区,营造出具有主次高低之分和包合空间的山体,含有小瀑布、跌水、溪流、湿地、主湖等不同形态的水体,形成与核心区遥相呼应的景观形态。
设计充分利用散布在城市中的绿地公园及高速路周边的防护绿地,通过竖向控制,将周边城市的雨水汇集到绿地中,形成分散在城市中的多个雨水花园。采用逐级渗透的雨水涵养系统:尽量减少雨水管道修建,促使雨水回渗;聚集多余雨水形成景观水面,用于绿地浇灌、冲洗道路等功能。这样既减少了对原始水文条件的破坏,又防涝减灾、充分改善城市生态环境。
最大限度保留温榆河两岸的植被及杨林大道两侧植被,形成整个公园的基调树种。充分保护现有密林及湿地,形成高绿量(其中密林达到60%以上)、群落丰富的绿地公园,塑造温榆河两岸最质朴、郊野、原生态的环境,从而形成一种粗放型的、低干扰的绿色空间。
提出“办公花园”理念,将办公场所引入环境优美的室外,倡导在自然中激发创新灵感。结合城市智能化系统的规划理念,这里将拥有全城开放的无线网络,覆盖全城的信息平台等现代城市数字设施,使人们在自然优美的户外环境中工作成为可能。
结合高层建筑的地上空间和地铁、公交枢纽、商场的地下空间,形成空中步行连廊与地下通道、下沉花园等多层次的慢行连接系统,将核心区组织成一个纵横交错的多维度的慢行网络。同时利用绿地植被优势,形成具有景观特色的慢行体验空间。
该项目荣获2013年北京市第十七届优秀工程设计奖城乡规划设计综合类二等奖和2013年国际风景园林师联合会亚太地区风景园林规划类荣誉奖(IFLA APR)。
地址:北京市海淀区清河中街清河嘉园东区甲1号楼16-25层 邮编:100085 电话:010-82819000 备案序号:京ICP备 05030709号-1